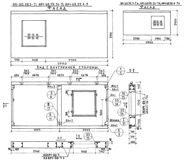
НР1-60.29.4-7

Чертеж изделия:
Чертеж НР1-60.29.4-7
Характеристики изделия:
ПараметрЗначение
Длина5990 мм
Ширина400 мм
Высота2900 мм
Масса8220 кг
Нормативный документСерия 1.132-1

НР1-60.29.4-7   Наружная стеновая панель рядовая по Серии 1.132-1.