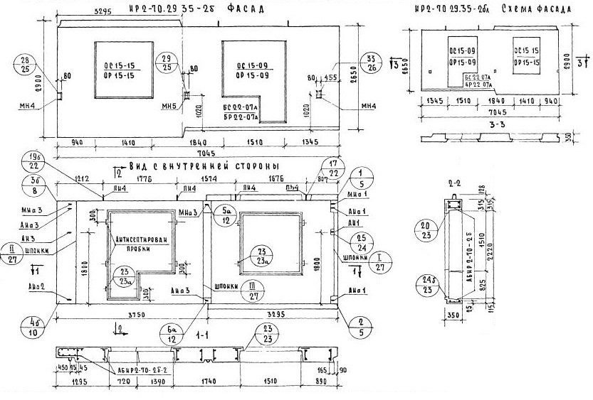
НР2-70.29.35-2б

Чертеж изделия:
Чертеж НР2-70.29.35-2б
Характеристики изделия:
ПараметрЗначение
Длина7045 мм
Ширина350 мм
Высота2900 мм
Масса6920 кг
Нормативный документСерия 1.132-1

НР2-70.29.35-2б   Наружная стеновая панель рядовая по Серии 1.132-1.