НР5-64.29.3-4бл-1

Чертеж изделия:
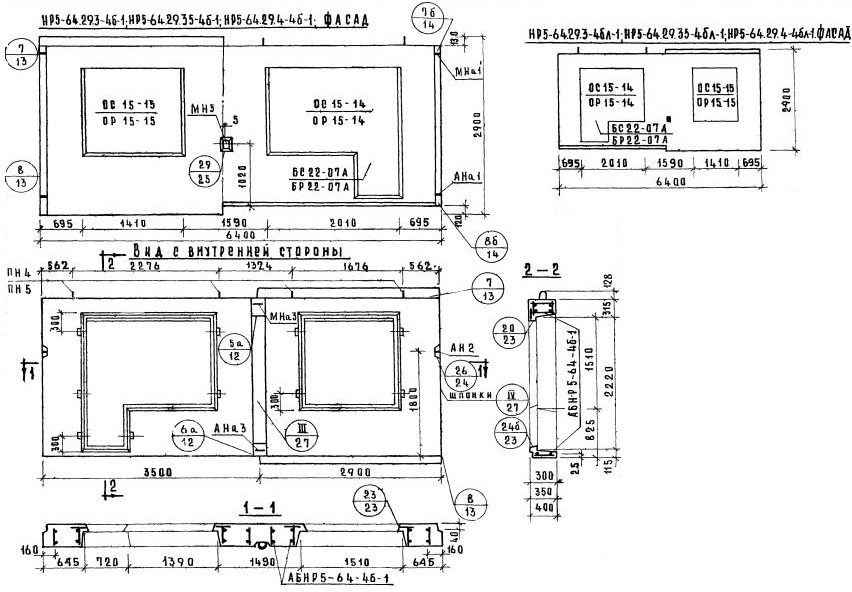
Чертеж НР5-64.29.3-4бл-1
Характеристики изделия:
ПараметрЗначение
Длина6400 мм
Ширина300 мм
Высота2900 мм
Масса5270 кг
Нормативный документСерия 1.132-1

НР5-64.29.3-4бл-1   Наружная стеновая панель рядовая по Серии 1.132-1.